Boutique Hotel La Cabane | Hotel in Bettmeralp

Hotel in Bettmeralp
Located in car-free Bettmeralp, Boutique Hotel La Cabane offers you alpine-style rooms with balconies, free Wi-fi and free wellness facilities including a sauna and a steam bath. A rich breakfast buffet with locally sourced products provides for a good start. The La Cabane at 6562 feet above sea level is a great base for exploring the UNESCO-protected Jungfrau-Aletsch region in the Swiss Alps. The Bettmerhorn and Schönbiel cable car stations are only 328 feet away.
Boutique Hotel La Cabane is located in Bettmeralp.
This 13 Bedrooms Hotel is suitable for tourists and travelers. It has several amenities that would guarantee your comfort. These amenities include: Balcony/Terrace, Bar, Hot Tub, and several others. This is a good star rated property and has over 179 reviews with the average score of 9.3 . Coming to Bettmeralp and needing a place to stay? Be it for work or for leisure, consider staying at this Hotel for your next visit, you will surely love it.
You can check the reviews and description of this 13 Bedrooms Hotel if you want to learn more about this place in Bettmeralp. These details are authentic, as they are provided by our partner, booking.com.
This Boutique Hotel La Cabane in Bettmeralp is well equipped and has all facilities that have been listed below. Please note that these details were shared to us by booking.com for the listed “Boutique Hotel La Cabane”. We solely rely on their shared details and are regarded as “accurate”. If you have any concerns about the information or accuracy describing this Hotel, please let us know.
Amenities
Facility Overview
-
Bar
-
Mini golf
-
Hiking
-
Spa
-
Skiing
-
Bike tours
-
Turkish/Steam Bath
-
Golf course (within 2 miles)
-
Sauna
-
Board games/Puzzles
-
Smoke-free property
-
Non-smoking rooms
-
Facilities for disabled guests
-
Family rooms
-
Elevator
-
Wifi in all areas
-
Ironing service
-
Daily housekeeping
-
Laundry
-
Tour desk
-
Free Wifi
-
Internet
-
Wifi
-
Terrace
-
Security alarm
-
Key card access
-
Key access
-
Fire extinguishers
-
Smoke alarms
-
Ski school
-
Ski storage
-
Ski rental on site
-
Ski-in, ski-out access
Policies
Please note that the bettmeralp can only be accessed by cable car via the betten valley station.
Reviews
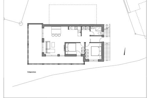
Room Arrangement
Room Info | Facilities |
---|---|
Double Room
Room Type:
Double
Room Size:
26 m2
|
BathroomBathrobe, Toilet, Slippers, Toilet paper, Hairdryer, Shower, Conditioner, Private bathroom, Towels, Shampoo, Body soapGeneralSafe, Heating, Hardwood or parquet floors, Trash cansMedia & TechnologyFlat-screen TV, TV, TelephoneKitchenElectric kettleBedroomChildrens' cribs, Linens, Wardrobe or closetRoom AmenitiesSocket near the bed, Non-feather pillow |
Junior Suite
Room Type:
Suite
Room Size:
32 m2
|
BathroomBathrobe, Toilet, Slippers, Toilet paper, Hairdryer, Shower, Conditioner, Private bathroom, Towels, Shampoo, Body soapGeneralSafe, Heating, Hardwood or parquet floors, Trash cansMedia & TechnologyFlat-screen TV, TV, TelephoneKitchenElectric kettleBedroomChildrens' cribs, Linens, Wardrobe or closetRoom AmenitiesSocket near the bed, Non-feather pillow |
Family Suite South
Room Type:
Family
Room Size:
43 m2
|
BathroomBathrobe, Toilet, Slippers, Toilet paper, Hairdryer, Shower, Conditioner, Private bathroom, Towels, Shampoo, Body soapGeneralSafe, Heating, Hardwood or parquet floors, Trash cansMedia & TechnologyFlat-screen TV, TV, TelephoneKitchenElectric kettleBedroomChildrens' cribs, Linens, Wardrobe or closetRoom AmenitiesSocket near the bed, Non-feather pillow |
Family Suite North
Room Type:
Family
Room Size:
45 m2
|
BathroomBathrobe, Toilet, Slippers, Toilet paper, Hairdryer, Shower, Conditioner, Private bathroom, Towels, Shampoo, Body soapGeneralSafe, Heating, Hardwood or parquet floors, Trash cansMedia & TechnologyFlat-screen TV, TV, TelephoneKitchenElectric kettleBedroomChildrens' cribs, Linens, Wardrobe or closetRoom AmenitiesSocket near the bed, Non-feather pillow |
Superior Double Room
Room Type:
Double
Room Size:
30 m2
|
BathroomBathrobe, Toilet, Slippers, Toilet paper, Hairdryer, Shower, Conditioner, Private bathroom, Towels, Shampoo, Body soapGeneralSafe, Heating, Hardwood or parquet floors, Trash cansMedia & TechnologyFlat-screen TV, TV, TelephoneKitchenElectric kettleBedroomLinens, Wardrobe or closetRoom AmenitiesSocket near the bed, Non-feather pillow |
Apartment with Mountain View
Room Type:
Apartment
Room Size:
65 m2
|
BathroomShower |