170 m² House ∙ 4 bedrooms ∙ 13 guests | House in Kilianshof

4 Bedroom House in Kilianshof
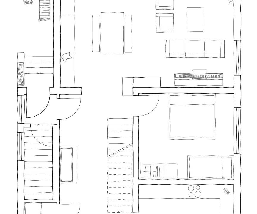
Our Ferienhaus Villa Thea in der Rhön is great for families with kids and for groups up to 8 people. House and garden are spacious to enjoy your holidays at the most.
The big living room with its couches, the long wooden table and the fire place make your country holidays perfect.
We offer two guest rooms, one with a double bed, the other with a double bed and a bunk bed. Lots of wood and white is combined with colors, spreading an air of charm and harmony.
In the kitchen you find everything you need and more. Fruit press, toaster, espresso machines, milk foamer, garlic press, ...
Our Villa Thea wouldn't be such a great place if it was at the spot where it actually is. The big, sunny garden with its terraces makes the property special.