65qm große barrierefreie Ferienwohnung mit Fußbodenheizung und Garten für 2 Personen plus Kind | Apartment in Michelau

1 Bedroom Apartment in Michelau
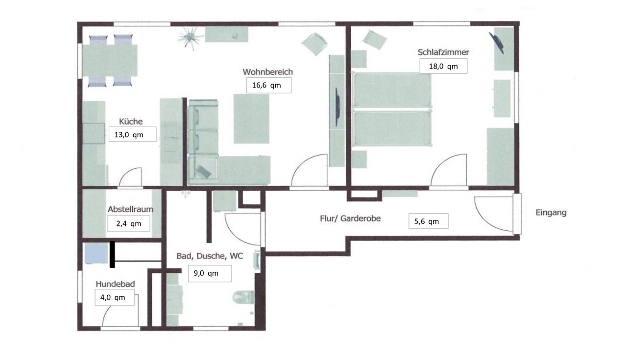
Die Ferienwohnung liegt im Erdgeschoss des Zweifamilienhauses, ist barrierefrei, ca. 65 qm groß und in Wohnküche, Schlafzimmer, Bad und Flur aufgeteilt. Eine zusätzliche Fußbodenheizung im Wohnbereich und Bad bringt wohlige Wärme an kalten Tagen. Die Fewo bietet Platz für zwei Erwachsene. Die Ausstattung ist komfortabel, durchdacht und lässt keine Wünsche offen. Sollte aber dennoch etwas fehlen oder nicht funktionieren, der Kontakt zum Vermieter ist schnell und unkompliziert jederzeit möglich. Das Grundstück ist 800 qm groß und eingezäunt. Hier hat Ihr Vierbeiner, der uns herzlich willkommen ist, genügend Platz sich auszutoben. Für unsere "zweibeinigen" Gäste steht im Garten ein Holzpavillon mit Sitzgelegenheit, in der Sommersaison zwei Relaxliegen und ein Grill zur freien Verfügung. Für Motorrad- oder Fahrradfreunde ist ein sicherer und trockener Unterstellplatz für die Zweiräder vorhanden. Ihr PKW hat ebenfalls einen reservierten Stellplatz. Ein Highlight für Hundebesitzer: Seit April 2019 steht Ihnen für Ihren Vierbeiner ein separates und komfortables Hundebad zur Reinigung bzw. Pflege kostenlos zur Verfügung.
65qm große barrierefreie Ferienwohnung mit Fußbodenheizung und Garten für 2 Personen plus Kind is located in Michelau. 65qm große barrierefreie Ferienwohnung mit Fußbodenheizung und Garten für 2 Personen plus Kind provides accommodation, featuring Fireplace/Heating, Barbecue/Outdoor Cooking, Internet, among other amenities. This Apartment features Fireplace/Heating, Barbecue/Outdoor Cooking, Internet, to make your stay a comfortable one.
65qm große barrierefreie Ferienwohnung mit Fußbodenheizung und Garten für 2 Personen plus Kind has 1 Bedroom , 1 Bathroom, and max occupancy of 2 people. The minimum rental for this property is 1 nights, but this can change depending on the season you plan on staying. Previous guests have given good rated it, and VRBO labeled it a top-rated Apartment because of the excellent services rendered by the owner or manager of this Apartment, and has consistently provided great experiences for their guests. Most families or guests that use it recommend it to their friends and some of them are repeat guests. Apartment has a friendly neighborhood, and the Michelau has interesting places to visit. If you want to learn more about the Apartment in Michelau, such as places to visit and things to do nearby, you can check below to learn more.
Amenities
Policies
Extra-person charges may apply and vary depending on property policy government-issued photo identification and a credit card, debit card, or cash deposit may be required at check-in for incidental charges host has not indicated whether there is a carbon monoxide detector on the property; consider bringing a portable detector with you on the trip host has not indicated whether there is a smoke detector on the property onsite parties or group events are strictly prohibited special requests are subject to availability upon check-in and may incur additional charges; special requests cannot be guaranteed this property is managed through our partner, vrbo. you will receive an email from vrbo with a link to a vrbo account, where you can change or cancel your reservation