Lindenhof Chalets | Ski Chalet in Scheidegg

4 Bedroom Ski Chalet in Scheidegg
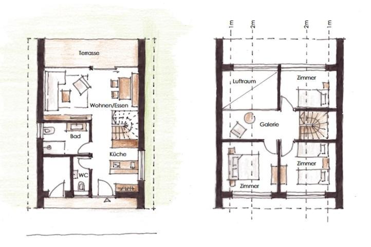
Lindenhof Chalets offers accommodations in Scheidegg, 13 miles from Casino Bregenz and 17 miles from Dornbirn Exhibition Center. The property is around 26 miles from Messe Friedrichshafen, 13 miles from Bregenz Train Station, and 16 miles from Lindau Train Station. There's an outdoor fireplace and guests can access free Wifi and free private parking. The chalet provides guests with a terrace, mountain views, a seating area, a flat-screen TV, a fully equipped kitchen with a dishwasher and an oven, and a private bathroom with walk-in shower and a hair dryer. A toaster, a fridge, and stovetop are also available, as well as a coffee machine and a kettle. At the chalet complex, every unit comes with bed linen and towels. Outdoor play equipment is also available at Lindenhof Chalets, while guests can also relax in the garden. BigBOX Allgäu is 30 miles from the accommodation. Friedrichshafen Airport is 26 miles from the property.
Lindenhof Chalets is located in Scheidegg.
This 4 Bedrooms Ski Chalet is suitable for tourists and travelers. It has several amenities that would guarantee your comfort. These amenities include: Internet, Parking, Ocean View, and several others. This is a 3 star rated property . Coming to Scheidegg and needing a place to stay? Be it for work or for leisure, consider staying at this Ski Chalet for your next visit, you will surely love it.
You can check the reviews and description of this 4 Bedrooms Ski Chalet if you want to learn more about this place in Scheidegg. These details are authentic, as they are provided by our partner, booking.com.
This Lindenhof Chalets in Scheidegg is well equipped and has all facilities that have been listed below. Please note that these details were shared to us by booking.com for the listed “Lindenhof Chalets”. We solely rely on their shared details and are regarded as “accurate”. If you have any concerns about the information or accuracy describing this Ski Chalet, please let us know.
Amenities
Facility Overview
-
Private Parking
-
Free parking
-
Parking on site
-
Parking
-
Outdoor play equipment for kids
-
Board games/Puzzles
-
Smoke-free property
-
Family rooms
-
Non-smoking rooms
-
Safe
-
Internet
-
Free Wifi
-
Wifi
-
Outdoor fireplace
-
Outdoor furniture
-
Picnic area
-
Terrace
-
Garden
-
Sun deck
-
First aid kits available
-
Staff follow all safety protocols as directed by local authorities
-
Beach chairs/Loungers
Policies
This property does not accommodate bachelor(ette) or similar parties, please inform of your expected arrival time in advance. you can use the special requests box when booking, or contact the property directly using the contact details in your confirmation, managed by a private host
Room Arrangement
Room Info | Facilities |
---|---|
Three-Bedroom Chalet
Room Type:
Chalet
Room Size:
83 m2
|
BathroomPrivate bathroom, Shower, Guest bathroom, Walk-in shower, Hairdryer, Towels, Toilet, Toilet paperGeneralHardwood or parquet floors, Trash cans, Safe, HeatingMedia & TechnologyFlat-screen TV, TVKitchenKitchenette, Electric kettle, Kitchenware, High chair, Refrigerator, Dishwasher, Kitchen, Coffee machine, Toaster, Dining table, Stovetop, OvenLiving AreaDining area, Sofa, Sitting areaViewGarden view, View, Mountain viewOutdoorsOutdoor dining area, Barbecue, Terrace, Outdoor furnitureBedroomChildrens' cribs, LinensAccessibilityUpper floors accessible by stairs onlyBuilding CharacteristicsDetachedRoom AmenitiesNon-feather pillow, Socket near the bed, Clothes rackEntertainment & Family ServicesChild safety socket covers |
Two-Bedroom Chalet
Room Type:
Chalet
Room Size:
79 m2
|
BathroomPrivate bathroom, Shower, Walk-in shower, Hairdryer, Towels, Toilet, Toilet paperGeneralHardwood or parquet floors, Trash cans, Safe, HeatingMedia & TechnologyFlat-screen TV, TVKitchenKitchenette, Electric kettle, Kitchenware, High chair, Refrigerator, Dishwasher, Kitchen, Coffee machine, Toaster, Dining table, Stovetop, OvenLiving AreaDining area, Sofa, Sitting areaViewGarden view, View, Mountain viewActivitiesSaunaOutdoorsOutdoor dining area, Barbecue, Terrace, Outdoor furnitureBedroomChildrens' cribs, LinensAccessibilityUpper floors accessible by stairs onlyBuilding CharacteristicsDetachedRoom AmenitiesNon-feather pillow, Socket near the bed, Clothes rackEntertainment & Family ServicesChild safety socket covers |