Vacation apartment 1 for 2-4 persons (82 sqm, ground floor) | Apartment in Bernau am Chiemsee

1 Bedroom Apartment in Bernau am Chiemsee
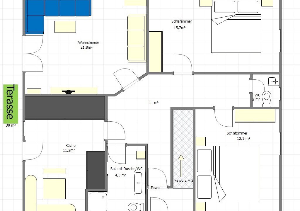
Gepflegter, kinderfreundlicher Bauernhof in ruhiger Lage mit freiem Berg- und Seeblick. Separates Gästehaus mit Ferienwohnungen im EG und 1. Stock. Komfortable Ausstattung mit 1 oder 2 Schlafzimmern, Wohnküche, SAT-TV, DU/WC, separates WC, Balkon, Terrasse. Kinderspielplatz, Kinderbett und Hochstuhl, Tischtennis, Streicheltiere, Parkplatz am Haus, Rad- und Wanderwege ab Hof, Semmelservice, Unterstellplatz für Fahrräder, Liegewiese. Behindertenfreundlich. In allen Wohnungen ist eine Spülmaschine vorhanden.
Behindertenfreundliche Wohnung (EG), ebenerdig, Dusche nicht mit Rollstuhl befahrbar. Mit Spülmaschine und Internetanschluß.
Vacation apartment 1 for 2-4 persons (82 sqm, ground floor) is located in Bernau am Chiemsee. Vacation apartment 1 for 2-4 persons (82 sqm, ground floor) provides accommodation, featuring Parking, Other, TV, among other amenities. This Apartment features Parking, Other, TV, to make your stay a comfortable one.
Vacation apartment 1 for 2-4 persons (82 sqm, ground floor) has 1 Bedroom , 1 Bathroom, and max occupancy of 4 people. The minimum rental for this property is 1 nights, but this can change depending on the season you plan on staying. Previous guests have given good rated it, and VRBO labeled it a top-rated Apartment because of the excellent services rendered by the owner or manager of this Apartment, and has consistently provided great experiences for their guests. Most families or guests that use it recommend it to their friends and some of them are repeat guests. Apartment has a friendly neighborhood, and the Bernau am Chiemsee has interesting places to visit. If you want to learn more about the Apartment in Bernau am Chiemsee, such as places to visit and things to do nearby, you can check below to learn more.
Amenities
Policies
Extra-person charges may apply and vary depending on property policy government-issued photo identification and a credit card, debit card, or cash deposit may be required at check-in for incidental charges host has indicated there is a smoke detector on the property host has not indicated whether there is a carbon monoxide detector on the property; consider bringing a portable detector with you on the trip onsite parties or group events are strictly prohibited special requests are subject to availability upon check-in and may incur additional charges; special requests cannot be guaranteed this property is managed through our partner, vrbo. you will receive an email from vrbo with a link to a vrbo account, where you can change or cancel your reservation